Podsumowanie
Opis
Działki budowlane w Lipnej Woli!
Oferujemy do sprzedaży dwie działki budowlane, położone w Lipnej Woli, w gminie Słomniki.
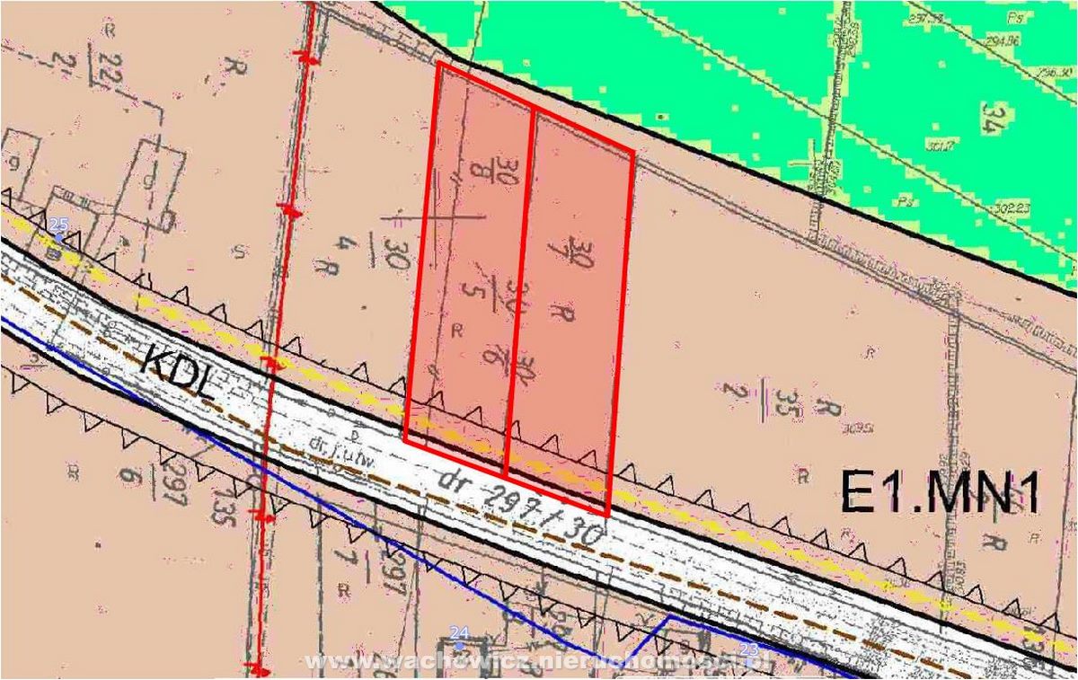
Działki mają numery geodezyjne 30/7 i 30/8, obie mają powierzchnie 14,61 ar, kształt zbliżony do prostokąta o wymiarze 20m x 73m.
W Miejscowym Planie Zagospodarowania Przestrzennego gminy Słomniki, działki oznaczone są symbolem E1.MN1, oznaczającym tereny zabudowy mieszkaniowej jednorodzinnej.
Działki posiadają bezpośredni dostęp do asfaltowej drogi przebiegającej przez Lipną Wolę. Wzdłuż granicy z drogą przebiega gazociąg, prąd oraz światłowód internetowy. Wodociąg znajduje się po drugiej stronie drogi.
Otoczenie działki stanowi luźna zabudowa domów jednorodzinnych oraz pola uprawne.
Działki znajdują się w odległości 7 km od Słomnik i około 30 km od Krakowa.
Na nieruchomość założona jest księga wieczysta – bez obciążeń.
Cena na działkę: 155 000 zł
KUPUJĄCY NIE PŁACI PROWIZJI
Serdecznie zapraszamy do kontaktu.
Agent prowadzący – Damian Wachowicz – licencja nr 25792
tel. 574 191 306
Agencja Nieruchomości i Ubezpieczeń
32-200 Miechów, ul. Powstańców 1863r. 12






